Wohngemeinschaft
Bildergalerie Wohngemeinschaft
Die Wohngemeinschaft im Ursulinenhof
Das Zusammenleben in einer großen Familie ist Vorbild für das Leben in der Wohngemeinschaft im Ursulinenhof. Beziehungen zu Angehörigen, Freunden und Nachbarn können weiterhin unkompliziert gepflegt werden. Der WG-Alltag ist offen für Familie und Freunde, Gäste sind willkommen.Was bietet die Wohngemeinschaft?
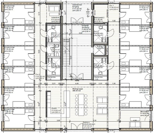
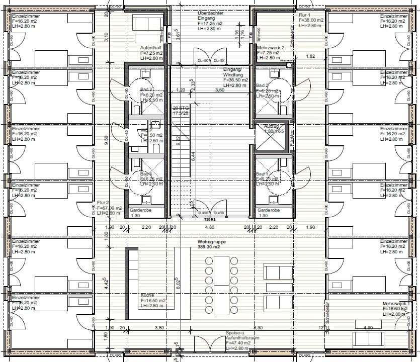
- Ein barrierefreies Zuhause für 11 pflege- und/oder betreuungsbedürftige Menschen aller Pflegegrade mit 24h-Betreuung bis zum Tod
- Orientierung am häuslichen Alltag und an den individuellen Gewohnheiten und Wünschen der Bewohner*innen in familiärer Atmosphäre. Die Pflege ist zu Gast.
- Eine normale große Wohnung, die von der Gemeinde Oberried vermietet wird und die mit Wohnküche, Gemeinschaftsräumen, Bädern und Schlafzimmern ausgestattet ist.
- Die Nähe zu Oberrieds Dorfmitte mit dem Freitagsmarkt, dem Bäcker, dem Cafe und der Kirche sowie die Integration in die Dorfgemeinschaft
- Mitbestimmung durch das gesetzlich vorgeschriebene Bewohner- bzw. Angehörigengremium
Geteilte Verantwortung
Im Sinne einer "geteilten Verantwortung" übernehmen Alltagsbegleiterinnen, Angehörige, Pflegefachkräfte und ehrenamtliche Mitarbeiter jeweils einen Teil der Verantwortung. Pflege und Betreuung ist hier Tag und Nacht gewährleistet.
Das monatlich stattfindende Bewohner- bzw. Angehörigengremium (Versammlung der Angehörigen der WG) entscheidet über die Neuaufnahme von Bewohnern unter Heranziehung der nachfolgenden Kriterien:
Das monatlich stattfindende Bewohner- bzw. Angehörigengremium (Versammlung der Angehörigen der WG) entscheidet über die Neuaufnahme von Bewohnern unter Heranziehung der nachfolgenden Kriterien:
- Pflege- und Betreuungssituation des Bewerbers oder der Bewerberin
- Aktuelle Betreuungssituation der Wohngemeinschaft insgesamt
- Unterstützungsmöglichkeiten durch das persönliche Umfeld des Bewerbers (Angehörige)
- Bezug zu Oberried und soziale Einbindung
Aufnahme von neuen Bewohnern
Beachten Sie bitte, dass die Pflegewohngemeinschaft kein Hospiz, sondern eine Wohngemeinschaft ist. Dies bedeutet, dass unsere WG kein Ort für die letzten Lebenstage ist, sondern Lebensraum für einen Lebensabschnitt einschließlich des letzten Lebensabschnittes. Der Bewohner sollte die Möglichkeit haben, sich in diesem neuen Lebensumfeld einfinden zu können. Unter diesem Aspekt kann ein zu langes Zuwarten dazu führen, nicht mehr aufgenommen werden zu können. Auf der anderen Seite setzen wir uns mit all unserer Kraft dafür ein, dass jeder, der in die WG aufgenommen wird, auch dort bleiben kann bis zum Tod.
- Kurzinfo Wohngemeinschaft Ursulinenhof
(PDF Datei - 220 KB) - Konzeption der selbstverantworteten Wohngemeinschaft / Kosten und Leistungen / Interessensbekundung
(PDF Datei - 657 KB) - Ambulant betreute Wohngemeinschaften - Grundzüge, Merkmale, Kosten, Leistungsbereiche
(PDF Datei - 1,26 MB) - Interessensbekundung
(PDF Datei - 181 KB)
Das Leben in Wohngemeinschaften
Der kurze Video-Clip im Link unten klärt über die Arbeit der Alltagsbegleiterinnen in Wohngemeinschaften auf. Ganz nebenbei erfährt und spürt man allerhand wie das Leben in Wohngemeinschaften funktioniert. Der Link kann gerne weiter geteilt werden, damit möglichst viele davon profitieren und mehr darüber erfahren, wie positiv und schön das Zusammenleben für alle Beteiligten sein kann.
- Alltagsbegleiterinnen in Wohngemeinschaften - YouTube
Ein kurzes Porträt über die Wohngemeinschaft im Haus am Mühlbach in Umkirch. Regie/Konzeption: Lucia Eitenbichler Kamera: Alexander Birzele, Jakob Guntermann...

